Le projet / Bistro Nancy ARTEM
Cette espace non-occupé depuis un certain temps a été l'occasion de créer avec nos clients un nouveau lieu de rencontre à proximité d'un campus étudiant dans un esprit bistrot. Le lieu a été partagé en deux espaces: un côté bar et un côté restauration. Le mobilier, les miroirs et l'acier noir ont participé à donner vie à cet esprit.
Avant
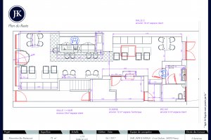
Plans et vues 3D
Après
