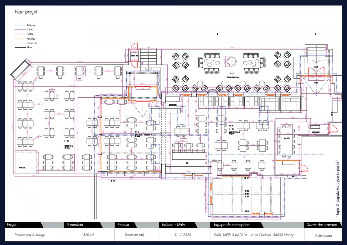
Le projet / Restaurant bord de lac, Langatte
Extension d'un restaurant situé au bord d'un lac. Afin de profiter de la vue, nous avons aménagé un grand espace terrasse et de grandes baies-vitrées. Nous avons également retravaillé tous les espaces intérieurs au bâtiment.
