L'agence
Prestations
Professionnels
Particuliers
Micro-édition
Contact
Profession libérale - Médecine esthétique
Taille de police
Réduire la taille de la police
Augmenter la taille de police
Imprimer
E-mail
Le projet / Bar d'hôtel Vittel
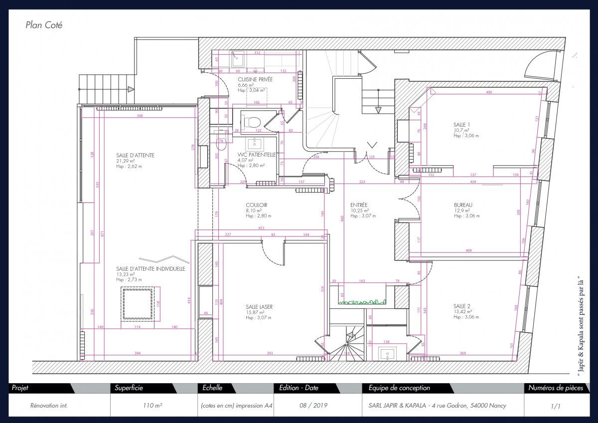
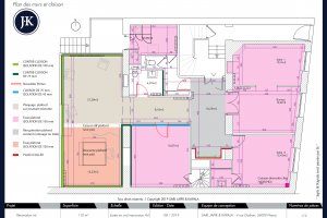
Création d'un cabinet de médecine esthétique à partir d'un vieil appartement.
Avant
Vues et plans 3D
Après
Plus dans cette catégorie :
« Hôtellerie - Chambres
Commerce - Cave à vin »
Retour en haut
Japir et Kapala sont passés par là
L'agence
Prestations
Professionnels
Particuliers
Micro-édition
Contact
© 2026 Japir & Kapala. Tous droits reservés. Conception
Pixlcreation
Boosté par
ltheme
& inspiré par
JSN Artista
-
Mentions légales
-
Gestion cookies et services