Présentation du projet

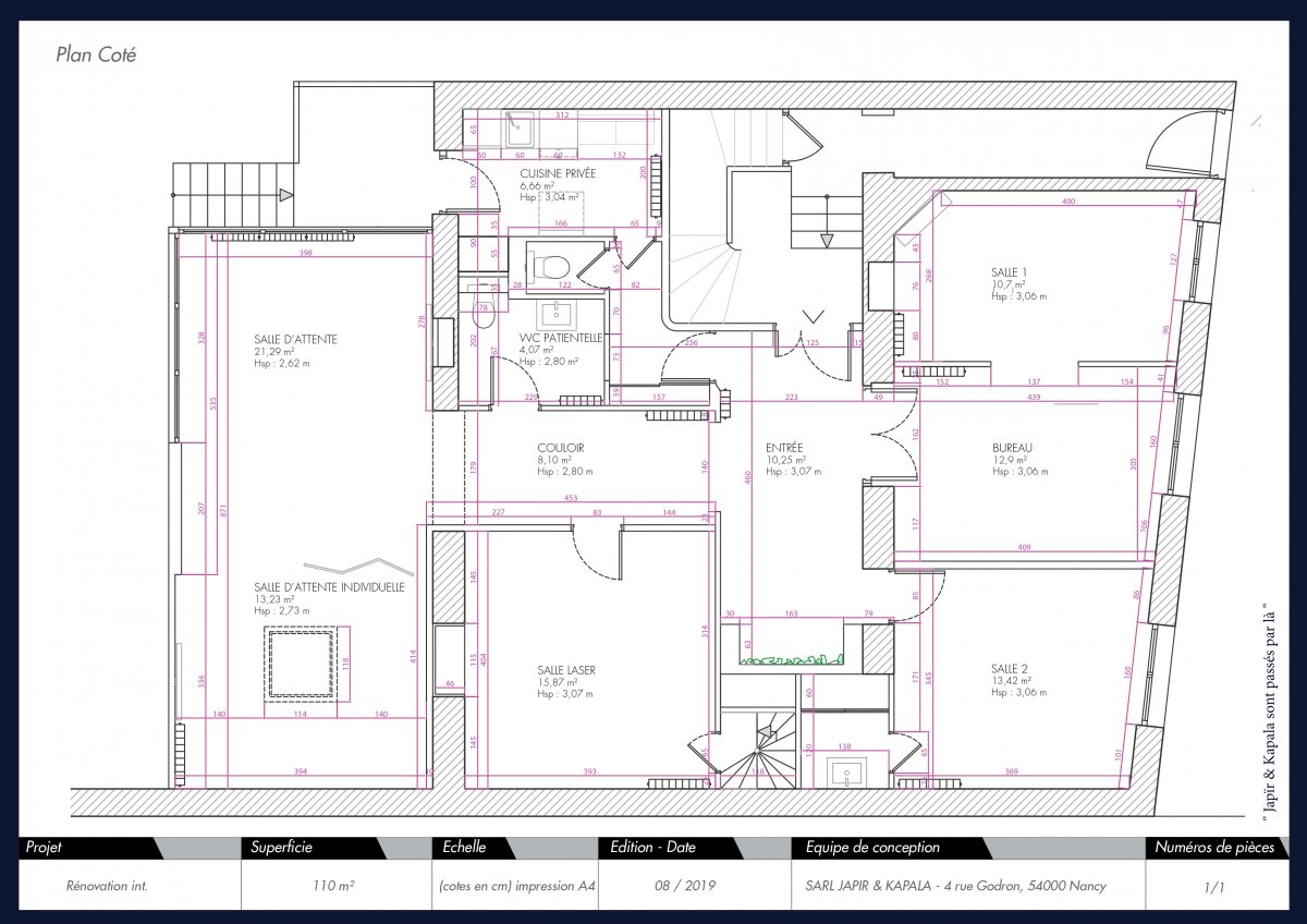
Japïr & Kapala a reconverti un vieil appartement en un cabinet de médecine esthétique raffiné et fonctionnel. Le projet se distingue par une ambiance apaisante et professionnelle : parquet bois pour réchauffer l’espace, menuiseries noires contrastantes pour structurer les volumes, et mobilier discret dans une palette claire. Chaque zone — accueil, salle d’attente, salle de soins — a été pensée pour allier confort, circulation fluide et souci esthétique. Le résultat est un lieu accueillant, élégant et parfaitement adapté à la pratique médicale.

Un projet similaire ? Contactez-nous !

Nom du client
Centre de médecine des Glacis
Lieu
Vittel

De l’idée à la matière

Avant
Plan 3D